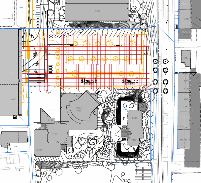
Parking du centre commercial de Meyrin-Centre
Dans le cadre du projet de requalification des espaces publics du Coeur de Cité à Meyrin, le parking couvert de Meyrin-Centre offre une capacité de 485 places de stationnement. Cet ouvrage a permis de supprimer le parking existant en surface et de revoir la politique de stationnement et d’accessibilité de cette centralité de la Commune de Meyrin.



